Discover three new construction homes by Confluence Development on 40th Ave NE. These residences offer an exceptional mix of contemporary design, flexible living spaces, and sought-after features like garages and generous private outdoor areas. Whether you need an expansive, multi-generational layout or a secure, low-maintenance single-story home, this community offers a modern solution tailored to diverse lifestyles in Seattle.
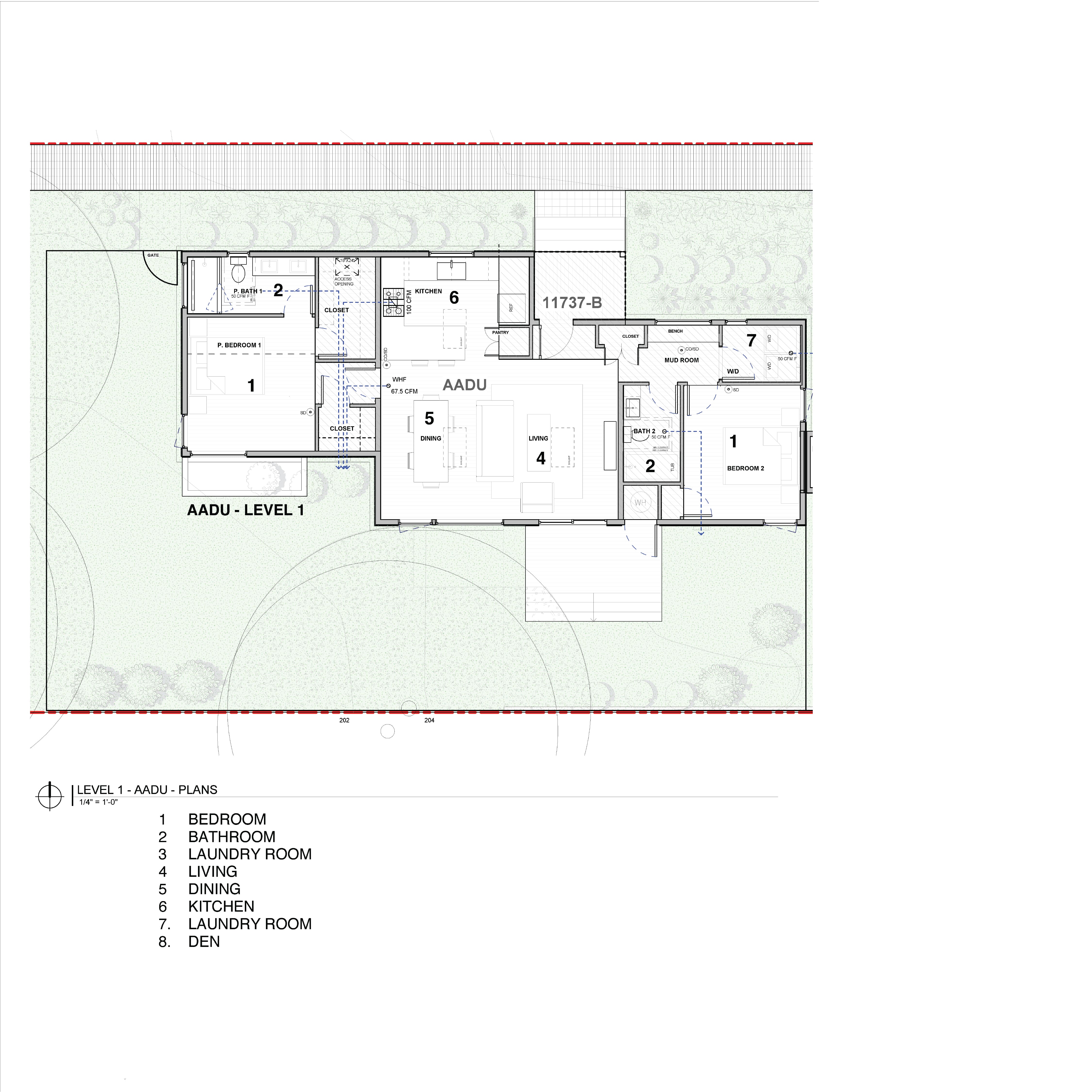
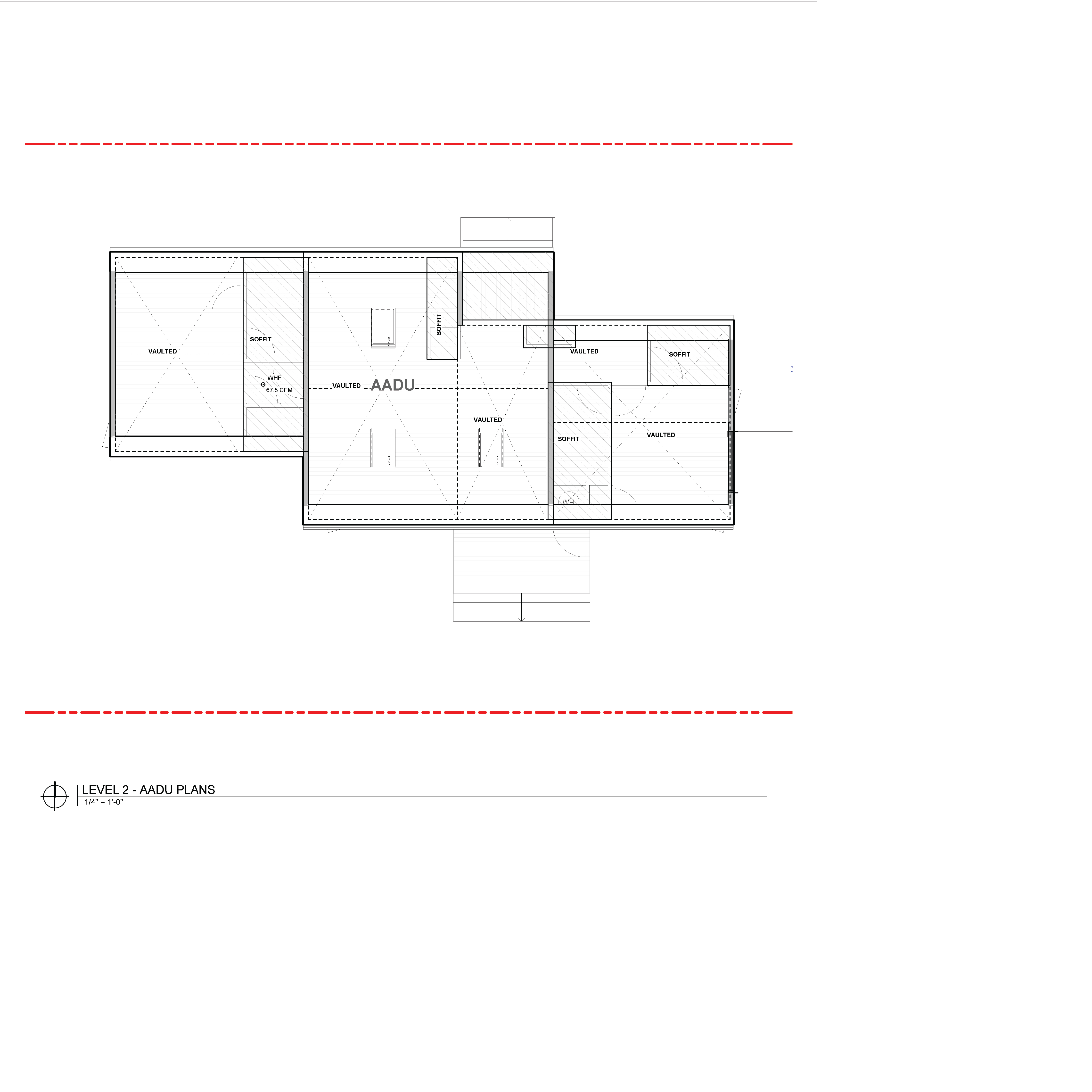
Enjoy the ease and convenience of a single-story home in this private, 1,070 sq. ft., 3-bedroom, 2-bathroom unit. The main living area is brightened by elegant vaulted ceilings in the living room, creating an open and welcoming atmosphere. Situated on a substantial lot, this home emphasizes outdoor enjoyment with a large backyard that provides exceptional privacy. With a surface parking spot, this unit is a rare find for those seeking a simplified living experience without sacrificing outdoor space or comfort.
- Parking: 1 Surface parking spot
- Lot Size: 3,206
Specs






Choosing a home builder is choosing a partner in your future
More Available Homes
Check out all the homes available for purchase.
Crafting Spaces, Reimagining Lives.












