Discover three new construction homes by Confluence Development on 40th Ave NE. These residences offer an exceptional mix of contemporary design, flexible living spaces, and sought-after features like garages and generous private outdoor areas. Whether you need an expansive, multi-generational layout or a secure, low-maintenance single-story home, this community offers a modern solution tailored to diverse lifestyles in Seattle.
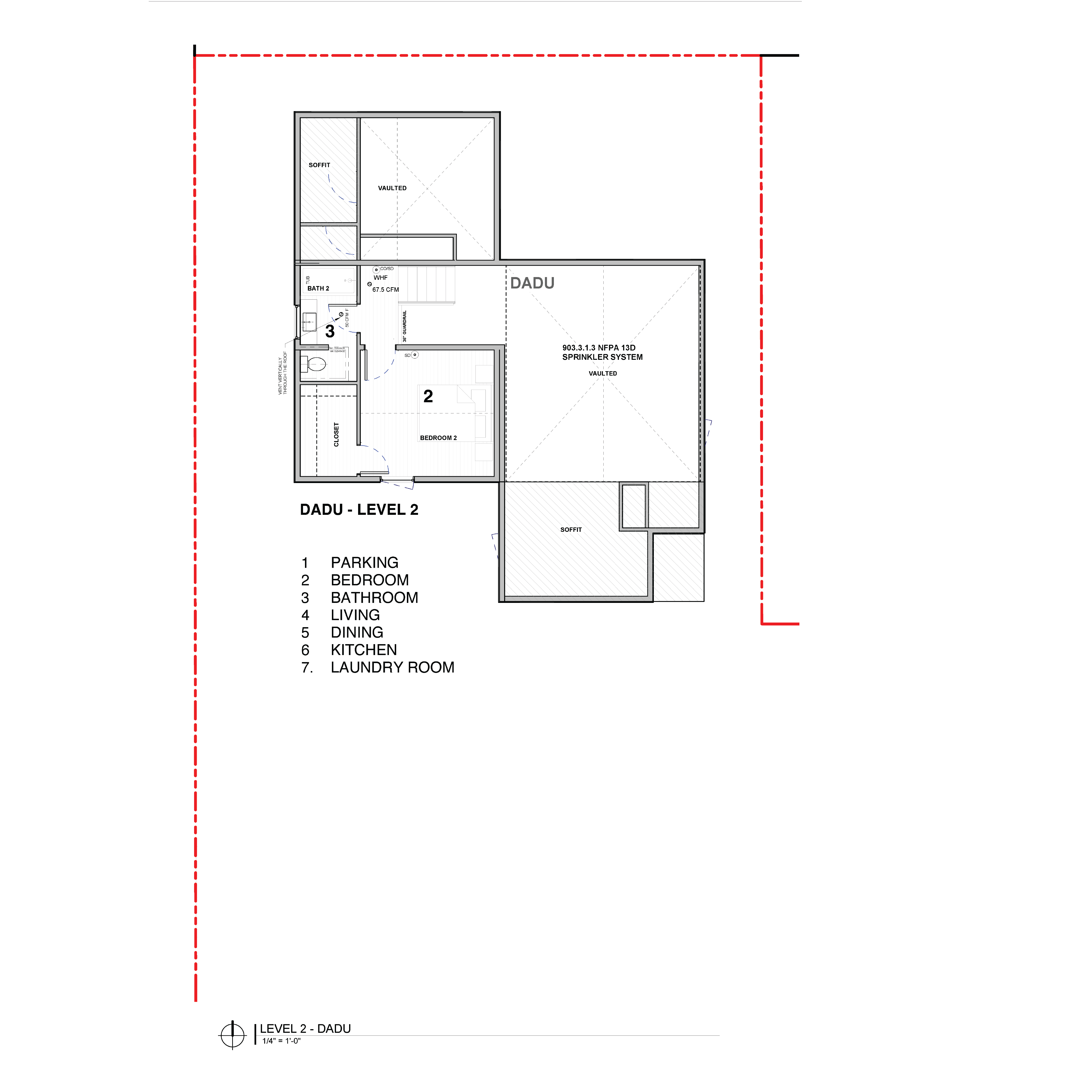
This appealing 1,451 sq. ft., 2-bedroom, 2-bathroom home prioritizes convenience and outdoor living. It features the highly desirable amenity of a single-car attached garage. Inside, the living room is accentuated by vaulted ceilings, enhancing the sense of space and light. Step outside to a large backyard that includes a private patio space, perfect for dining and relaxation. Designed with privacy in mind, this home offers an excellent balance of indoor comfort, secure parking, and personal outdoor retreat.
- Parking: 1 Attached Garage
- Lot Size: 2,673
Specs






Choosing a home builder is choosing a partner in your future
More Available Homes
Check out all the homes available for purchase.
Crafting Spaces, Reimagining Lives.












