Discover a new collection of three thoughtfully designed homes by Confluence Development on 40th Ave NE in Seattle. Each home offers a unique layout and distinct features, all crafted with the modern homeowner in mind. This intimate community provides a perfect blend of modern living, private outdoor spaces, and convenient access to local amenities. From a spacious two-story detached home to secure, low-maintenance townhomes, these properties deliver high-quality construction and livable design.
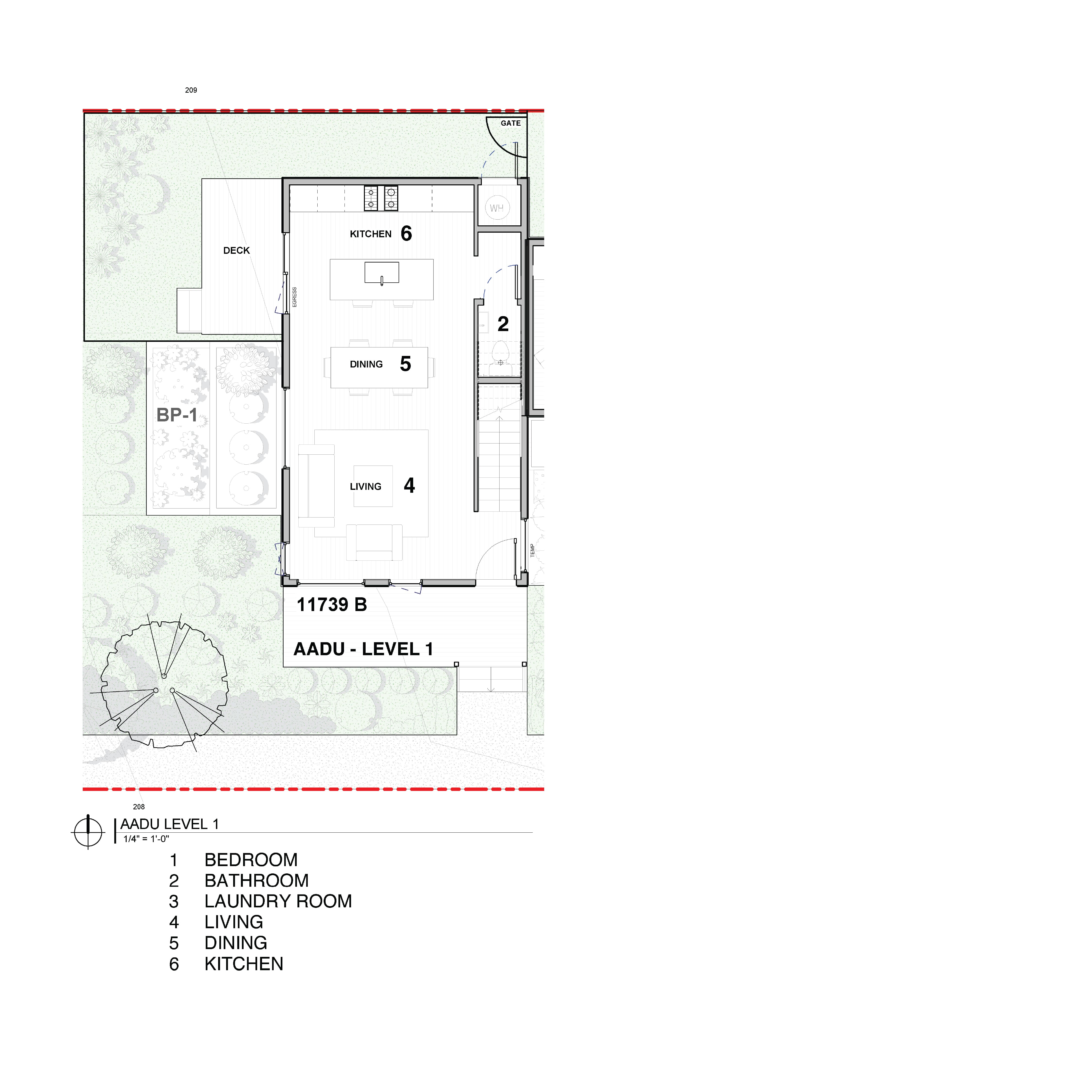
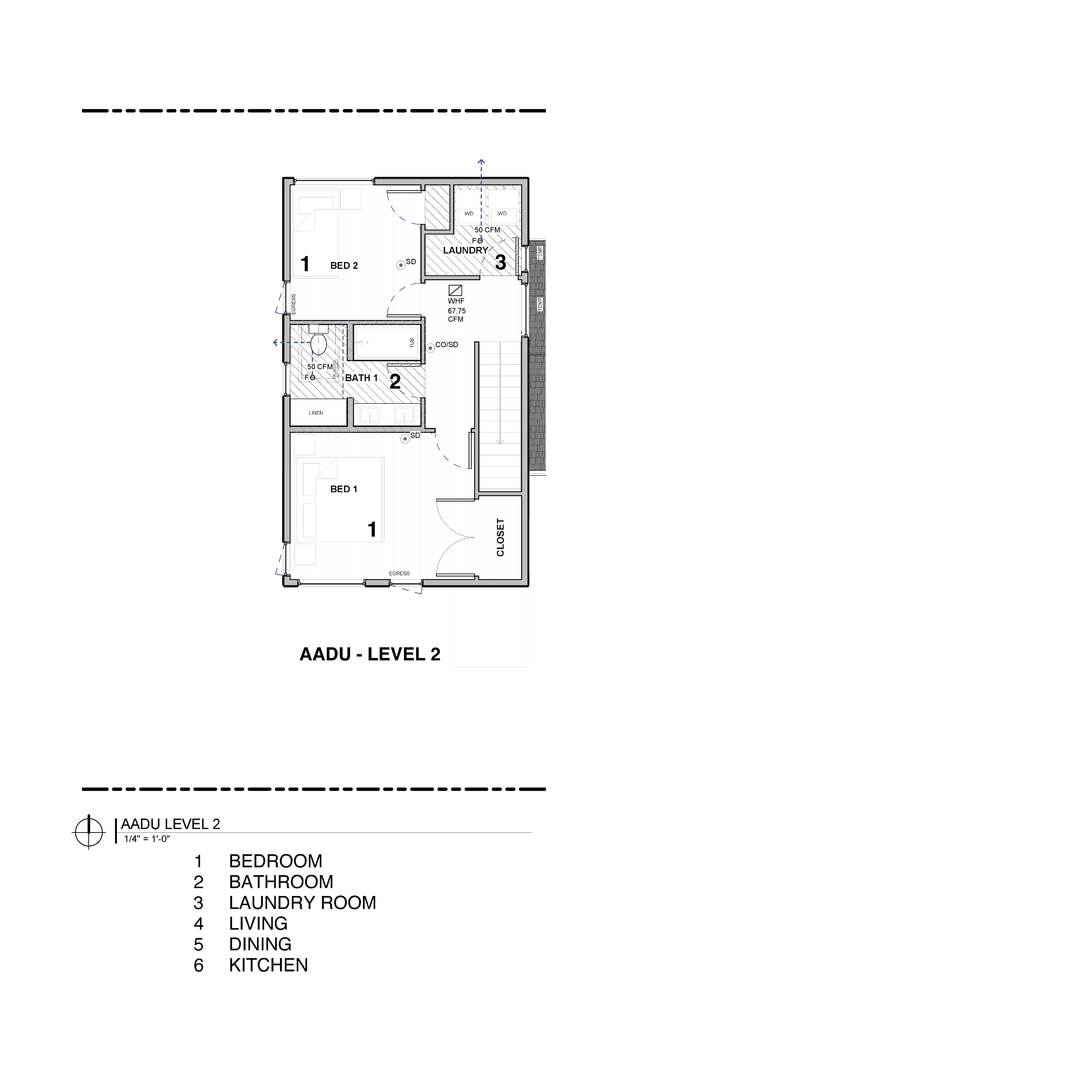
Experience sophisticated townhome living in this beautifully appointed 1,080 sq. ft., 2-bedroom, 2.5-bathroom unit. Designed for entertaining, the main living area boasts an oversized kitchen island, the perfect gathering spot. Outdoor features are plentiful, including a charming covered front porch and a large, secure private backyard complemented by a generous rear deck—ideal for seamless indoor-outdoor living. With a dedicated surface parking spot, this home offers a blend of style, security, and low-maintenance convenience.
- Parking: 1 Surface Parking Spot
- Lot Size: 1,500
- Features: Covered front porch, secure private backyard, large rear deck, oversized kitchen island
Specs






Choosing a home builder is choosing a partner in your future
More Available Homes
Check out all the homes available for purchase.
Crafting Spaces, Reimagining Lives.












