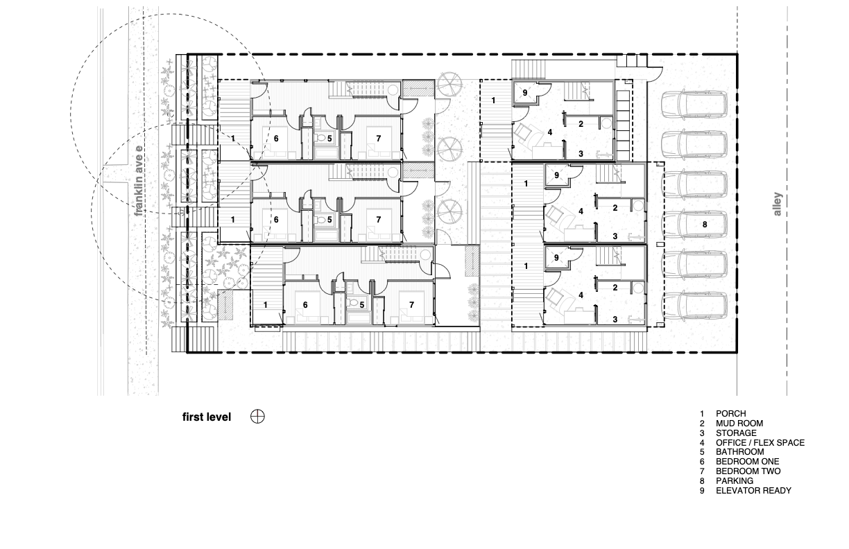
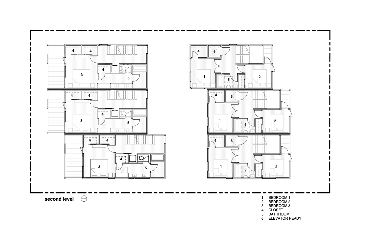
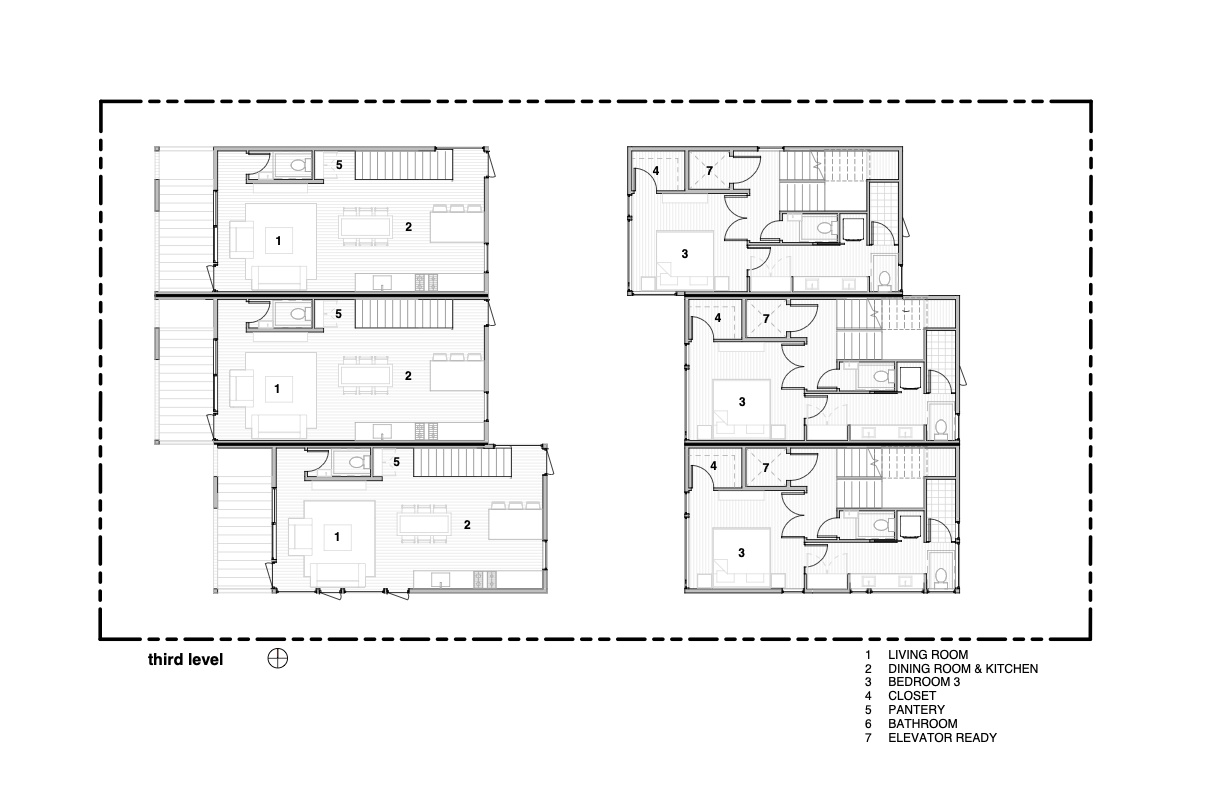
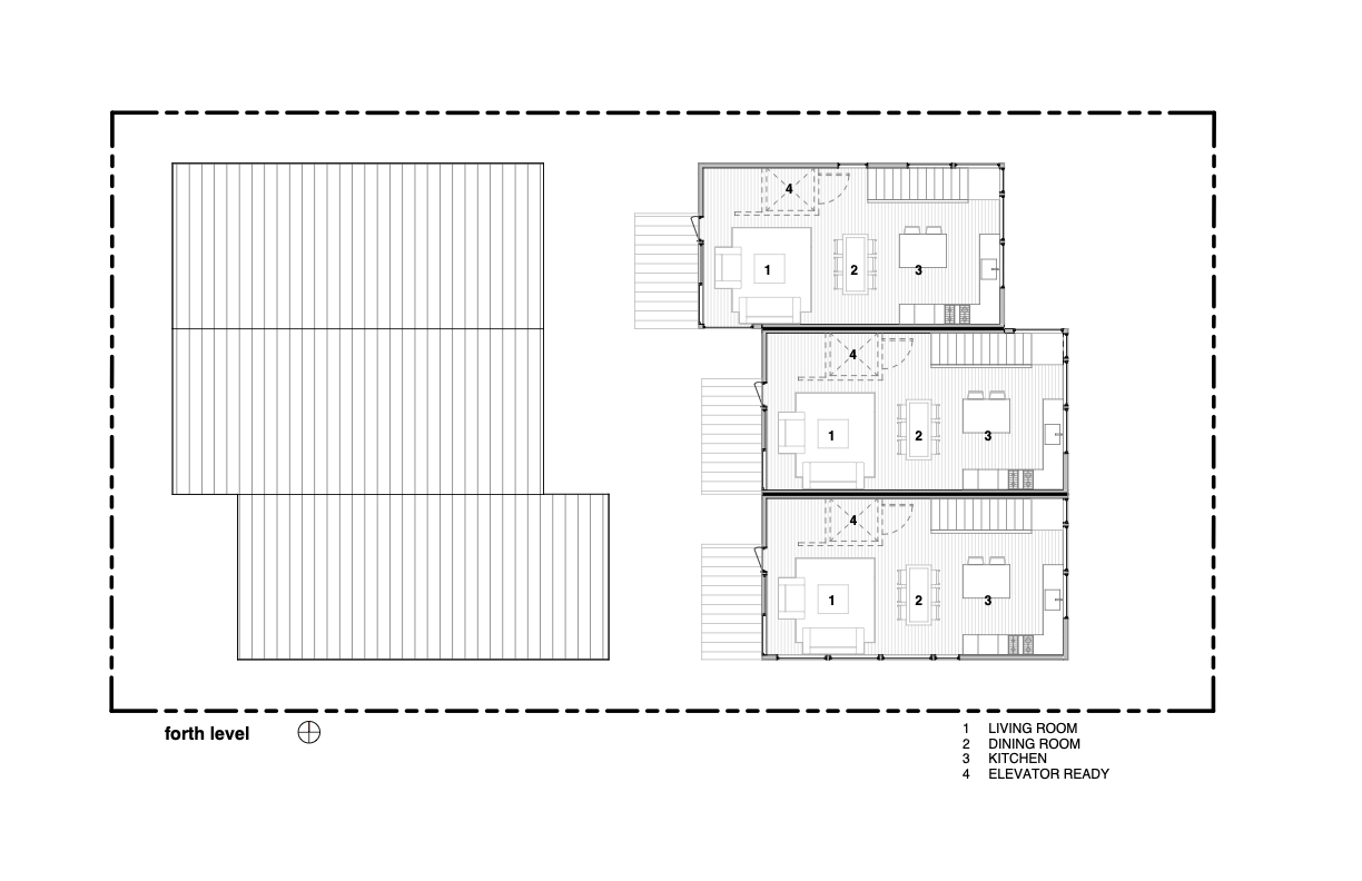
This property, developed by Confluence Development, is located in the Eastlake neighborhood. The multi-story homes feature open floor plans ranging from 1,512 to 1,828 square feet, with up to three bedrooms and a flexible space.
The interiors showcase a blend of modern design and high-end craftsmanship, including wide oak floors, custom wood-wrapped windows, and solid wood accents. Unique features include floating staircases and top-of-the-line appliances. An optional elevator upgrade is available.
Some units are designed with a "reverse" floor plan, creating a penthouse-like feel with vaulted ceilings and large walls of windows that offer expansive views of the city and Lake Union. One standout element is a "NanaWall," a movable glass wall that opens onto a covered sun deck.
The property's location provides easy access to local cafes, restaurants, and is a short distance from the South Lake Union and downtown areas.
Specs







Choosing a home builder is choosing a partner in your future
More Available Homes
Check out all the homes available for purchase.
Crafting Spaces, Reimagining Lives.


































